Description
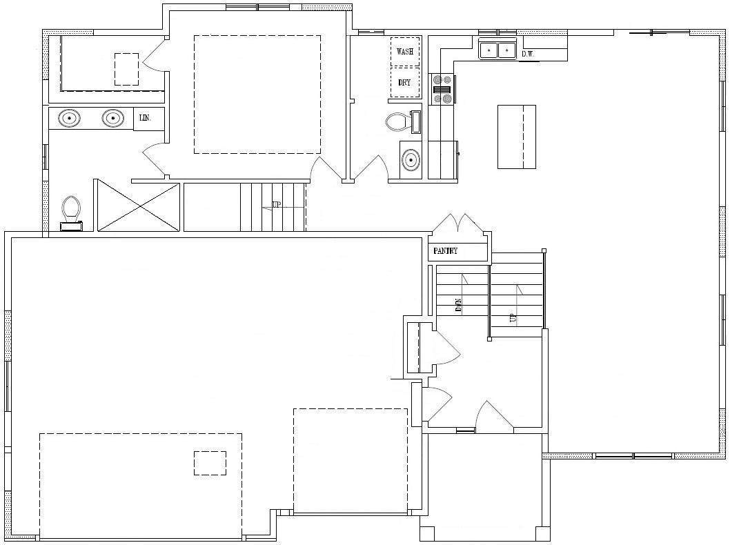
New 3 level split on a large .47 acre lot. Features 5 bedrooms, 3 1/2 baths, 9' main floor walls, main floor half bath / laundry combined, white painted trim and paneled interior doors, poplar handrail with metal spindles, 2 zoned heating, kitchen pantry, kitchen island, stained birch cabinets and vanities with granite / quartz tops. Owners suite features trayed ceiling and walk-in closet, owners bath with double bowl vanity and custom walk-in shower. Lower level family room with electric fireplace. Large 3 car insulated garage with floor drain and roughed in for future heater. Close to schools, walking / bike path and park. Unobstructed view in back yard.
-
5BEDS
-
0.47ACRES
-
3BATHS
-
11/2 BATHS
-
3,020SQFT
-
$182$/SQFT
Listing courtesy of Horizon Realty, LLC.Description
New 3 level split on a large .47 acre lot. Features 5 bedrooms, 3 1/2 baths, 9' main floor walls, main floor half bath / laundry combined, white painted trim and paneled interior doors, poplar handrail with metal spindles, 2 zoned heating, kitchen pantry, kitchen island, stained birch cabinets and vanities with granite / quartz tops. Owners suite features trayed ceiling and walk-in closet, owners bath with double bowl vanity and custom walk-in shower. Lower level family room with electric fireplace. Large 3 car insulated garage with floor drain and roughed in for future heater. Close to schools, walking / bike path and park. Unobstructed view in back yard.
IDX data © 2026 Regional Multiple Listing Service of Minnesota, Inc. All rights reserved. The data relating to real estate for sale on this web site comes in part from the Broker Reciprocity℠ Program of the Regional Multiple Listing Service of Minnesota, Inc. Real estate listings held by brokerage firms other than Bre Berry & Company are marked with the Broker Reciprocity℠ logo or the Broker Reciprocity℠ thumbnail logo (a little black house) and detailed information about them includes the name of the listing brokers. Bre Berry & Company is not a Multiple Listing Service, nor does it offer MLS access. This website is a service of Bre Berry & Company, a broker Participant of the Regional Multiple Listing Service of Minnesota, Inc. Information deemed reliable but not guaranteed. By viewing the listings on this site, you are agreeing to abide by the RMLS End-User License Agreement. Data last updated 2026-02-11T10:21:39.517.
Click here for Digital Millennium Copyright Act
